Mánudagur 27. október
Fasteignaleitin
Skráð 23. okt. 2025
Deila eign
Deila

Víðiteigur 20

EinbýlishúsHöfuðborgarsvæðið/Mosfellsbær-270
194.9 m2
6 Herb.
4 Svefnh.
2 Baðherb.
Verð
138.500.000 kr.
Fermetraverð
710.621 kr./m2
Fasteignamat
117.450.000 kr.
Brunabótamat
107.800.000 kr.
Mynd af Svanþór Einarsson
Svanþór Einarsson
Byggt 1987
Þvottahús
Garður
Bílskúr
Sérinng.
Fasteignanúmer
2084728
Húsgerð
Einbýlishús
Byggingarefni
Steypt
Númer hæðar
1
Númer íbúðar
1
Vatnslagnir
Upphaflegar
Raflagnir
Upphaflegar
Frárennslislagnir
Upphaflegar
Gluggar / Gler
Tvöfalt gler
Þak
Síðan húsið var byggt
Lóðarréttindi
Leigulóð
Svalir
Engar svalir
Upphitun
Sérhiti
Inngangur
Sérinngangur
Matsstig
7 - Fullgerð bygging
Kvöð / kvaðir
Afsal, sjá skjal nr. 411-I-001585/1991
Lóðarleigusamningur, sjá skjal nr. 411-M-008270/1987 - Lóðin er að flatarmáli 764,4 m2 og er leigð til 75 ára 05.09.1983. Iðnaðar- og verkstæðisrekstur er óheimill í bifreiðageymslu. Á lóðinni er kvöð um opið bílastæði.
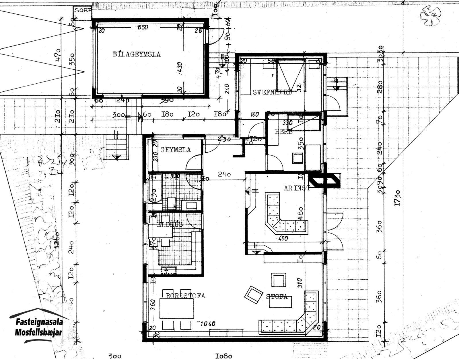
Skipulagi hefur verið breytt miðað við teikningar og  hafa svefnherbergi verið gerð úr hluta stofu/borðstofu. Einnig er búið að innrétta bílageymslu sem ósamþykkta stúdíóíbúð.
Merki er um rakamyndun í lofti í stofu.
** Hafðu samband og bókaðu tíma fyrir skoðun - Svanþór Einarsson, löggiltur fasteignasali - svanthor@fastmos.is eða 698-8555 - Steingrímur Benediktsson, löggiltur fasteignasali - steingrimur@fastmos.is eða 862-9416 - Theodór Emil Karlsson, löggiltur fasteignasali - teddi@fastmos.is eða 690-8040 ** 

Fasteignasala Mosfellsbæjar kynnir: 194,9 m2 einbýlishús á einni hæð með bílageymslu við Víðiteig 20 í Mosfellsbæ. Húsið er innst í botnlanga, steinsteypt og óvenju háreist með mikilli lofthæð. Bílageymslan er í dag notuð sem íbúðarrými. Eignin er skráð 194,9 m2, þar af einbýli 161,5 m2 og bílskúr 33,4 m2, einnig eru um 43 m2 af geymslu- og svefnlofum í húsinu sem eru ekki í fermetratölu eignarinnar. Eignin skiptist í forstofu, arinstofu, borðstofu, eldhús, 4 svefnherbergi, hol , geymslu/þvottahús og sérstæðan bílskúr sem hefur verið innréttaður sem stúdíóíbúð. Gengið er úr arinstofu út á timburverönd  í suðausturátt í fallegum skjólgóðum garði, með nýlegu gróðurhúsi. Frábær staðsetning miðsvæðis í Mosfellsbæ, stutt í skóla, verslanir, heilsugæslu og alla þjónustu. Stutt er í náttúruna og fallegar gönguleiðir, útivistarsvæði við Varmá og Úlfarsfell.

Smelltu hér til að fá söluyfirlit sent

Nánari lýsing:
Forstofa er með flísum á gólfi og fataskáp.
Arinstofa er þremur þrepum niður frá holi, með parketi auk flísa við arinn. Útgengt er úr arinstofu út á hellulagða verönd þar sem gert er ráð fyrir útiarni.
Borðstofa er með parketi á gólfi.
Eldhús er með parketi á gólfi og U-laga innréttingu með eldhúsborði,  bakaraofni og viftu. Gert er ráð fyrir ísskáp og uppþvottavél í innréttingu. 
Svefnherbergi 1 (hjónaherbergi) er með parketi á gólfi og fataskápum. Útgengt er á timburverönd úr hjónaherbergi.
Svefnherbergi 2 er með parketi á gólfi og fataskáp.
Svefnherbergi 3 er með parketi á gólfi. Í herberginu er stigi upp á geymsluloft sem er um 7 fermetra gólfflötur sem er ekki í fermetratölu eignarinnar.
Svefnherbergi 4 er með parketi á gólfi.
Geymsluloft er undir súð yfir hjónaherbergi sem eru um 21 fermetra gólfflötur sem er ekki í fermetratölu eignarinnar.
Baðherbergi er flísalagt í hólf og gólf, með innréttingu handlaug, salerni og baðkari með sturtuaðstöðu. Opnanlegur gluggi er á baðherbergi. 
Hol er með parketi á gólfi.
Þvottahús/geymsla er inn af forstofu með dúk á gólfi.
Bílageymslan er sérstæð og hefur verið innréttuð sem stúdíóíbúð með eldhúsi, stofu, svefnlofti og baðherbergi. Í eldhúsi er bakaraofn, helluborð og vifta. Á baðherbergi er innrétting með handlaug, salerni, sturtuklefi og tengi fyrir þvottavél.
Hiti er í hellulögðu bílaplani og gangstétt. Tengi fyrir hleðslustöð við bílaplan.
Garðurinn er gróinn með nýlegri timburverönd, markísu, pergólu og nýlegu gróðurhúsi.

Verð kr. 138.500.000,-
Engin gögn fundust fyrir þessa eign
Byggt 1987
33.4 m2
Fasteignanúmer
2084728
Byggingarefni
Steypt
Númer hæðar
01
Númer eignar
01
Húsmat
0 kr.
Lóðarmat
0 kr.
Fasteignamat samtals
0 kr.
Brunabótamat
12.500.000 kr.
Matsstig
7 - Fullgerð bygging

Sambærilegar eignir

Skoða eignina Bergrúnargata 7
Bílskúr
Skoða eignina Bergrúnargata 7
Bergrúnargata 7
270 Mosfellsbær
183.3 m2
Parhús
524
791 þ.kr./m2
144.900.000 kr.
Skoða eignina Kvíslartunga 112
Bílskúr
Opið hús:29. okt. kl 17:00-17:30
Kvíslartunga 112
270 Mosfellsbær
229.9 m2
Raðhús
524
587 þ.kr./m2
134.900.000 kr.
Skoða eignina Furubyggð 34
Bílskúr
Skoða eignina Furubyggð 34
Furubyggð 34
270 Mosfellsbær
164.7 m2
Parhús
514
758 þ.kr./m2
124.900.000 kr.
Skoða eignina Fellsás 5
Skoða eignina Fellsás 5
Fellsás 5
270 Mosfellsbær
238.4 m2
Einbýlishús
714
629 þ.kr./m2
149.900.000 kr.
Fasteignaleitin
Öflugur fasteignaleitarvefur með einföldu og notendavænu viðmóti sem býður upp á ítarlegar upplýsingar um fasteignir, þróun verðlags og fróðleik um fasteignamarkaðinn.
Hafðu samband
© Copyright 2025 - Fasteignaleitin