Lögmannsstofa Ólafs Björnssonar kynnir í einkasölu eignina Borgarrimi 8. Vel skipulögð endaíbúð í nýbyggðu raðhúsi í Reykholti. Íbúðin er 101m2 að stærð með fjögur herbergi, þvottahús og baðherbergi. Eignin er fullbúin að innan og utan og er tilbúin til afhendingar við undirritun kaupsamnings.
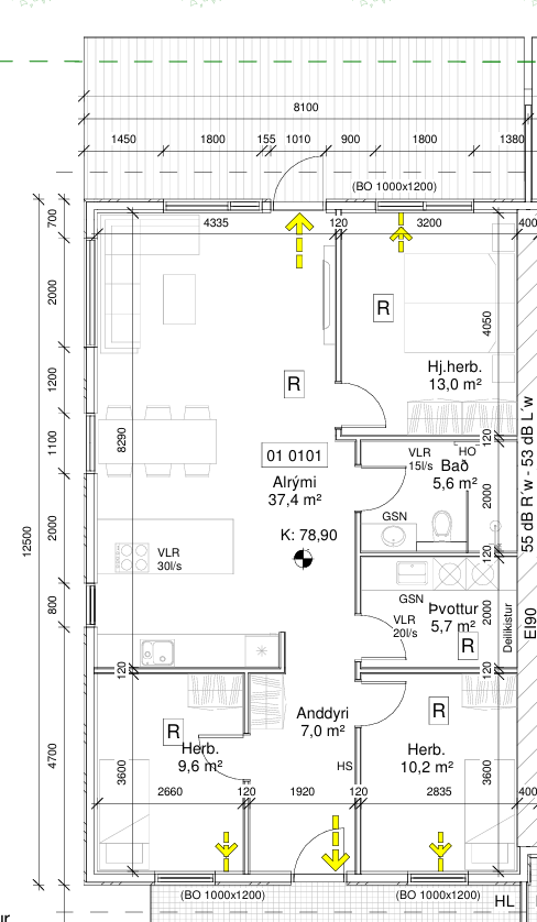
Um er að ræða 101m2 endaíbúð í 3 íbúða raðhúsi í Reykholti. Nánar tiltekið eign merkt 01-01, fastanúmer 252-4469 ásamt öllu því sem eigninni fylgir og fylgja ber, þar með talið tilheyrandi lóðar og sameignarréttindi.Eignin er skráð sem hér segir hjá HMS: Eign 252-4469, birt stærð 101.3m2. Eignin stendur á leigulóð.
Að utan er eignin klædd með grárri láréttri, viðhaldslausri, bárujárnsklæðningu og gluggalistum úr svörtu áli. Að innan skilast eignin fullbúin með gólfefnum og innréttingum frá Parka. Möl í bílaplani, meðfram gafli hússins og fyrir aftan hús. Lóð verður þökulögð. Á gólfum verður ljóst harðparket í öllum rýmum nema votrýmum. Í þvottahúsi og baðherbergi eru gráar flísar á gólfi og gráar flísar í walk-in sturtuklefa á baðherbergi. Baðherbergisinnrétting með spegli frá Parka, walk-in sturta og upphengt salerni. Loftræsting í eigninni.
Að innan skiptist eignin í anddyri, 3 svefnherbergi, baðherbergi, þvottahús og eldhús og stofu í einu alrými. Útgegnt í garð úr stofunni. Fataskápar í svefnherbergjum og anddyri. Hljóðvistardúkur í lofti með innfelldri led lýsingu. Hiti í gólfi. Í eldhúsi er fullbúin eldhúsinnrétting frá Parka, með innbyggðum ísskáp, innbyggðri uppþvottavél, ofni og spanhelluborði á eldhúseyju. Gert ráð fyrir sætum fyrir 3-4 við eldhúseyjuna.
Eignin skilast með lokaúttekt en kaupandi greiðir skipulagsgjald þegar það verður lagt á af sveitarfélaginu.
Nánari upplýsingar veitir Kristófer Ari Te Maiharoa Lögfræðingur og löggiltur fasteignasali, í síma 6956134 eða tölvupósti kristo@olafur.is
Bókið skoðun við tækifæri.
Um skoðunar- og aðgæsluskyldu: Í lögum um fasteignakaup nr. 40/2002 er kveðið á um ríka skoðunarskyldu kaupenda á fasteignum. Lögmannsstofa Ólafs Björnssonar bendir væntanlegum kaupendum á að kynna sér vel ástand fasteigna við skoðun og fyrir tilboðsgerð og ef þurfa þykir að leita til sérfræðinga um nánari ástandsskoðun.
Forsendur söluyfirlits: Söluyfirlit er samið af fasteignasala í samræmi við ákvæði laga nr. 70/2015. Þær upplýsingar sem fram koma í söluyfirliti þessu eru sóttar í opinberar skrár, til seljanda sjálfs og eftir atvikum til húsfélags. Seljandi veitir upplýsingar um eign í samræmi við upplýsingaskyldu laga um fasteignakaup nr. 40/2002. Fasteignasali sannreynir að þær upplýsingar séu réttar með sjónskoðun á eigninni. Fasteignasali getur ekki fullyrt um ástand og eiginleika þeirra hluta fasteigna sem ekki eru aðgengilegir og sjást ekki berum augum, t.d. lagnir, dren, skólp og þak.
Gjöld sem kaupandi þarf að standa straum af vegna kaupanna: 1. Stimpilgjald af kaupsamningi - 0.8% af heildarfasteignamati / 1.6% fyrir lögaðila, (0.4% við fyrstu kaup einstaklinga). 2. Þinglýsingagjald af kaupsamningi, veðskuldabréfi, veðleyfi o.fl.- kr. 2.700 af hverju skjali. 3. Lántökugjald lánastofnunar - almennt kr. 50.000 - 75.000. Sjá nánar á heimsíðum lánastofnanna. 4. Umsýsluþóknun til fasteignasölu kr. 55.000 + vsk. 5. Ef um nýbyggingu er að ræða þá greiðir kaupandi skipulagsgjald þegar það verður lagt á. Skipulagsgjaldið er 0.3% af endanlegu brunabótamati.
Lögmannsstofa Ólafs Björnssonar kynnir í einkasölu eignina Borgarrimi 8. Vel skipulögð endaíbúð í nýbyggðu raðhúsi í Reykholti. Íbúðin er 101m2 að stærð með fjögur herbergi, þvottahús og baðherbergi. Eignin er fullbúin að innan og utan og er tilbúin til afhendingar við undirritun kaupsamnings.
Um er að ræða 101m2 endaíbúð í 3 íbúða raðhúsi í Reykholti. Nánar tiltekið eign merkt 01-01, fastanúmer 252-4469 ásamt öllu því sem eigninni fylgir og fylgja ber, þar með talið tilheyrandi lóðar og sameignarréttindi.Eignin er skráð sem hér segir hjá HMS: Eign 252-4469, birt stærð 101.3m2. Eignin stendur á leigulóð.
Að utan er eignin klædd með grárri láréttri, viðhaldslausri, bárujárnsklæðningu og gluggalistum úr svörtu áli. Að innan skilast eignin fullbúin með gólfefnum og innréttingum frá Parka. Möl í bílaplani, meðfram gafli hússins og fyrir aftan hús. Lóð verður þökulögð. Á gólfum verður ljóst harðparket í öllum rýmum nema votrýmum. Í þvottahúsi og baðherbergi eru gráar flísar á gólfi og gráar flísar í walk-in sturtuklefa á baðherbergi. Baðherbergisinnrétting með spegli frá Parka, walk-in sturta og upphengt salerni. Loftræsting í eigninni.
Að innan skiptist eignin í anddyri, 3 svefnherbergi, baðherbergi, þvottahús og eldhús og stofu í einu alrými. Útgegnt í garð úr stofunni. Fataskápar í svefnherbergjum og anddyri. Hljóðvistardúkur í lofti með innfelldri led lýsingu. Hiti í gólfi. Í eldhúsi er fullbúin eldhúsinnrétting frá Parka, með innbyggðum ísskáp, innbyggðri uppþvottavél, ofni og spanhelluborði á eldhúseyju. Gert ráð fyrir sætum fyrir 3-4 við eldhúseyjuna.
Eignin skilast með lokaúttekt en kaupandi greiðir skipulagsgjald þegar það verður lagt á af sveitarfélaginu.
Nánari upplýsingar veitir Kristófer Ari Te Maiharoa Lögfræðingur og löggiltur fasteignasali, í síma 6956134 eða tölvupósti kristo@olafur.is
Bókið skoðun við tækifæri.
Um skoðunar- og aðgæsluskyldu: Í lögum um fasteignakaup nr. 40/2002 er kveðið á um ríka skoðunarskyldu kaupenda á fasteignum. Lögmannsstofa Ólafs Björnssonar bendir væntanlegum kaupendum á að kynna sér vel ástand fasteigna við skoðun og fyrir tilboðsgerð og ef þurfa þykir að leita til sérfræðinga um nánari ástandsskoðun.
Forsendur söluyfirlits: Söluyfirlit er samið af fasteignasala í samræmi við ákvæði laga nr. 70/2015. Þær upplýsingar sem fram koma í söluyfirliti þessu eru sóttar í opinberar skrár, til seljanda sjálfs og eftir atvikum til húsfélags. Seljandi veitir upplýsingar um eign í samræmi við upplýsingaskyldu laga um fasteignakaup nr. 40/2002. Fasteignasali sannreynir að þær upplýsingar séu réttar með sjónskoðun á eigninni. Fasteignasali getur ekki fullyrt um ástand og eiginleika þeirra hluta fasteigna sem ekki eru aðgengilegir og sjást ekki berum augum, t.d. lagnir, dren, skólp og þak.
Gjöld sem kaupandi þarf að standa straum af vegna kaupanna: 1. Stimpilgjald af kaupsamningi - 0.8% af heildarfasteignamati / 1.6% fyrir lögaðila, (0.4% við fyrstu kaup einstaklinga). 2. Þinglýsingagjald af kaupsamningi, veðskuldabréfi, veðleyfi o.fl.- kr. 2.700 af hverju skjali. 3. Lántökugjald lánastofnunar - almennt kr. 50.000 - 75.000. Sjá nánar á heimsíðum lánastofnanna. 4. Umsýsluþóknun til fasteignasölu kr. 55.000 + vsk. 5. Ef um nýbyggingu er að ræða þá greiðir kaupandi skipulagsgjald þegar það verður lagt á. Skipulagsgjaldið er 0.3% af endanlegu brunabótamati.
Öflugur fasteignaleitarvefur með einföldu og notendavænu viðmóti sem býður upp á ítarlegar upplýsingar um fasteignir, þróun verðlags og fróðleik um fasteignamarkaðinn.