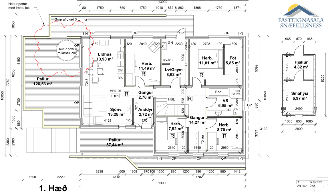
158,4 fm. einbýlishús byggt úr timbri árið 1940 skv. fasteignamati. Húsið er upphaflega byggt árið 1905 en við það var var byggt árin 1940 og 1979 og og efri hæð var byggð árið 2008.
Neðri hæð skiptist í forstofu, samliggjandi hol, stofu og eldhús, baðherbergi, fjögur svefnherbergi og þvottahús. Gangur er rúmgóður og í enda hans er ágæt vinnuaðstaða. Útihurð er á þvottahúsi. Í hjónaherbergi er afstúkað fatarými.
Flísar eru á forstofu, málað steingólf á þvottahús, dúkur á baðherbergi en parket á öðrum gólfum.
Góðar innréttingar eru í húsinu og innréttingar og tæki á baðherbergi eru nýleg.
Úr holi er gengið upp á efri hæð sem er ein stofa með gluggum á öllum hliðum. Þaðan er mjög gott útsýni til allra átta. Flísar eru á gólfum á efri hæð og stigi er úr harðviði.
Góður sólpallur er við húsið og þar er heitur pottur. Þá er við húsið geymsluskúr á steyptri plötu sem endurbyggður var árið 2020. Skiptist hann í þurrkhjall og geymslu sem er upphituð og einangruð.
Að utan er húsið klætt með steni klæðningu.
Lóð er frágengin og er hún með möl að stórum hluta.
Á síðustu 10 árum hafa eftirtaldar endurbætur verið gerðar á húsinu:
Eldhús var endurnýjað fært árið 2014. Raflagnir voru að mestu endurnýjaðar árin 2008 og 2014-2016. Ofna- og neysluvagnslagnir voru endurnýjaðar 2014 til 2016. Parket var endurnýjað að hluta árið 2019. Pallur var stækkaður árið 2019 og heitum potti komið fyrir. Þrjú lausafög á austurhlið voru endurnýjuð 2024. Gluggar og þakkantar verið málaðir reglulega.
Húsið stendur hátt og frá því er gott útsyni til allra átta. Þá er húsið miðsvæðis í bænum og í göngufæri við alla helstu þjónustu.
158,4 fm. einbýlishús byggt úr timbri árið 1940 skv. fasteignamati. Húsið er upphaflega byggt árið 1905 en við það var var byggt árin 1940 og 1979 og og efri hæð var byggð árið 2008.
Neðri hæð skiptist í forstofu, samliggjandi hol, stofu og eldhús, baðherbergi, fjögur svefnherbergi og þvottahús. Gangur er rúmgóður og í enda hans er ágæt vinnuaðstaða. Útihurð er á þvottahúsi. Í hjónaherbergi er afstúkað fatarými.
Flísar eru á forstofu, málað steingólf á þvottahús, dúkur á baðherbergi en parket á öðrum gólfum.
Góðar innréttingar eru í húsinu og innréttingar og tæki á baðherbergi eru nýleg.
Úr holi er gengið upp á efri hæð sem er ein stofa með gluggum á öllum hliðum. Þaðan er mjög gott útsýni til allra átta. Flísar eru á gólfum á efri hæð og stigi er úr harðviði.
Góður sólpallur er við húsið og þar er heitur pottur. Þá er við húsið geymsluskúr á steyptri plötu sem endurbyggður var árið 2020. Skiptist hann í þurrkhjall og geymslu sem er upphituð og einangruð.
Að utan er húsið klætt með steni klæðningu.
Lóð er frágengin og er hún með möl að stórum hluta.
Á síðustu 10 árum hafa eftirtaldar endurbætur verið gerðar á húsinu:
Eldhús var endurnýjað fært árið 2014. Raflagnir voru að mestu endurnýjaðar árin 2008 og 2014-2016. Ofna- og neysluvagnslagnir voru endurnýjaðar 2014 til 2016. Parket var endurnýjað að hluta árið 2019. Pallur var stækkaður árið 2019 og heitum potti komið fyrir. Þrjú lausafög á austurhlið voru endurnýjuð 2024. Gluggar og þakkantar verið málaðir reglulega.
Húsið stendur hátt og frá því er gott útsyni til allra átta. Þá er húsið miðsvæðis í bænum og í göngufæri við alla helstu þjónustu.
Öflugur fasteignaleitarvefur með einföldu og notendavænu viðmóti sem býður upp á ítarlegar upplýsingar um fasteignir, þróun verðlags og fróðleik um fasteignamarkaðinn.