Fimmtudagur 20. nóvember
Fasteignaleitin
Skráð 3. nóv. 2025
Deila eign
Deila

Hrafnaborg 2 (102)

FjölbýlishúsSuðurnes/Vogar-190
107.1 m2
4 Herb.
3 Svefnh.
1 Baðherb.
Verð
62.500.000 kr.
Fermetraverð
583.567 kr./m2
Fasteignamat
0 kr.
Brunabótamat
0 kr.
Mynd af Lilja Valþórsdóttir
Lilja Valþórsdóttir
Byggt 2025
Garður
Sérinng.
Fasteignanúmer
2540070_1
Húsgerð
Fjölbýlishús
Númer hæðar
0
Hæðir í húsi
2
Hæðir í íbúð
1
Lóðarréttindi
Leigulóð
Svalir
Sólpallur
Upphitun
Hitaveita
Inngangur
Sérinngangur
Prodomo fasteignasala kynnir glæsilegar íbúðir að Hrafnaborg 2 í sveitarfélaginu Vogum.
** HLUTDEILDARLÁN FRÁ HMS MÖGULEGT **
** AFHENDING FYRIR JÓL **

Húsið er við Hrafnaborg í Vogum sem er einstakt og nýstárlegt hverfi. Hverfið erumkringt óspilltri náttúru en um leið í nálægð við góðar samgönguæðar sem liggja til höfðuborgarsvæðisins og Reykjanesbæjar.

Á jarðhæð eru fjórar íbúðir með sérinngangi, sérgeymslur íbúða, hjólageymsla og tæknirými.
Á 2. hæð eru fjórar íbúðir með sérinngangi frá sameiginlegum svölum.
Íbúðirnar í húsinu eru 4ra – 5 herbergja. Húsið er staðsteypt og einangrað að utan. 

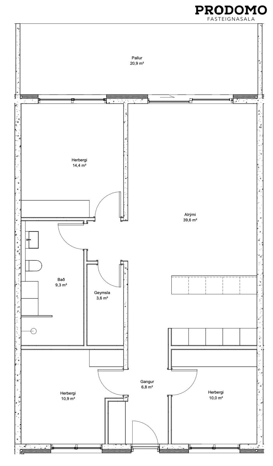
Íbúð 102 er 107,1 fm 4ra herbergja íbúð á 1.hæð með sérinngangi og u.þ.b 20,9 fm sólpalli. 
Íbúðin skiptist í forstofu, stofu/borðstofu, eldhús, 3 svefnherbergi, baðherbergi með tengi fyrir þvottavél og þurkara auk 3,6 fm geymslu sem er innan íbúðar.

Lýsing eigna:
Eldhús
- Sérsmíðuð og vönduð innrétting sem nær upp í loft, þar er lögð áhersla á að haga skipulagi eldhúsa á sem bestan hátt með nútíma hönnun og þarfir í huga, með miklu skápaplássi, svartur AEG bakaraofn í vinnuhæð, helluborði með innbyggðri viftu frá Franke.  Möguleiki á innbyggðri uppþvottavél og ísskáp. Borðplata verður úr ljósum QUARTZ stein með vaski. Innfeld lýsing í loftum. 
Baðherbergi - Gólf og veggir að hlutatil verða flísalagðir. Sérsmíðuð og vönduð innrétting. Upphengt salerni, handklæðaofn og sturta með glerskilrúmi. Gert er ráð fyrir þvottavél og þurrkara á baðherberginu með sérsmíðaðri innrétingu. Blöndunartæki af gerðinni Gröhe.
Fataskápar eru sérsmíðaðir upp í loft og í sama lit og innréttingar. Fataskápar verða í forstofu og svefnherbergjum með hillum og skúffum eftir því sem við á.
Allar íbúðir verða tilbúnar til lagningar gólfefna, fyrir utan baðherbergi og þvottarými sem verða flíslögð með 60×60 gráum flísum á gólfi og 60×60 á hluta veggja í ljósgráum lit. Flísar frá Álfaborg.
Geymslur eru innan allra íbúða. Hjóla- og vagnageymslur er á jarðhæð.
Bílastæði eru úr Ecoraster jarðvegsgrindum. Hellulagt verður framan við innganginn í húsið.  Lóð að öðruleiti með grasi. Lagt verður fyrir hleðslustöðvum við bílastæðin.

Mögulegt er að velja á milli ljósra eða dökkra innréttinga og fataskápa.

Heimasíðu verkefnisins má sjá með því að smella HÉR

Allar nánari upplýsingar veita Lilja Valþórsdóttir Löggiltur fasteignasali í síma 420-4030 / 860-6886 eða lilja@prodomo.is og Hákon Ó. Hákonarsson Löggiltur fasteignasali í síma 420-4030 / 899-1298 eða hakon@prodomo.is

​​​​​​Um skoðunar- og aðgæsluskyldu:

Í lögum um fasteignakaup nr. 40/2002 er kveðið á um ríka skoðunarskyldu kaupenda á fasteignum. PRODOMO fasteignasala bendir væntanlegum kaupendum á að kynna sér vel ástand fasteigna við skoðun og fyrir tilboðsgerð og ef þurfa þykir að leita til sérfræðinga um nánari ástandsskoðun.

Forsendur söluyfirlits:
Söluyfirlitið er samið af fasteignasala í samræmi við ákvæði laga nr. 70/2015. Þær upplýsingar sem fram koma í söluyfirliti þessu eru sóttar í opinberar skrár, til seljanda sjálfs og eftir atvikum til húsfélags. Seljandi veitir upplýsingar um eign í samræmi við upplýsingaskyldu laga um fasteignakaup nr. 40/2002. Fasteignasali sannreynir að þær upplýsingar séu réttar með sjónskoðun á eigninni. Fasteignasali getur ekki fullyrt um ástand og eiginleika þeirra hluta fasteigna sem ekki eru aðgengilegir og sjást ekki berum augum, t.d. lagnir, dren skólp og þak.

Gjöld sem kaupandi þarf að standa straum af vegna kaupanna:
* Stimpilgjald af kaupsamningi sem er hlutfall af fasteignamati. Stimpilgjald er 0,8% fyrir einstaklinga (0,4% við fyrstu kaup m.v. að lágmarki 50% eignarhlut) og 1,6% fyrir lögaðila.
* Þinglýsingargjald af kaupsamningi, veðskuldabréfum, veðleyfum o.fl. Þinglýsingargjald er kr. 2.700,- fyrir hvert skjal.
* Lántökugjald lánastofnunar. Um lántökugjald vísast í gjaldskrá viðkomandi lánveitanda.
* Umsýsluþóknun fasteignasölu skv. gjaldskrá.
* Kaupandi greiðir skipulagsgjald af hinum selda eignarhluta þegar það verður lagt á, nú 0,3% af brunabótamati.
Engin gögn fundust fyrir þessa eign

Sambærilegar eignir

Skoða eignina Grænaborg 4
Skoða eignina Grænaborg 4
Grænaborg 4
190 Vogar
93.8 m2
Fjölbýlishús
312
639 þ.kr./m2
59.900.000 kr.
Skoða eignina Skyggnisholt 4
Skoða eignina Skyggnisholt 4
Skyggnisholt 4
190 Vogar
99.9 m2
Fjölbýlishús
413
650 þ.kr./m2
64.900.000 kr.
Skoða eignina Hrafnaborg 1 - Íb. 203
Hrafnaborg 1 - Íb. 203
190 Vogar
107.1 m2
Fjölbýlishús
413
597 þ.kr./m2
63.900.000 kr.
Skoða eignina Hrafnaborg 1 - 203
Hrafnaborg 1 - 203
190 Vogar
107.1 m2
Fjölbýlishús
413
597 þ.kr./m2
63.900.000 kr.
Fasteignaleitin
Öflugur fasteignaleitarvefur með einföldu og notendavænu viðmóti sem býður upp á ítarlegar upplýsingar um fasteignir, þróun verðlags og fróðleik um fasteignamarkaðinn.
Hafðu samband
© Copyright 2025 - Fasteignaleitin