Föstudagur 15. maí
Fasteignaleitin
Opið hús:16. maí kl 15:30-16:00
Skráð 4. okt. 2025

Hringhamar 19 (603) ÞAKSVALIR

Nýbygging • FjölbýlishúsHöfuðborgarsvæðið/Hafnarfjörður-221
98.1 m2
3 Herb.
2 Svefnh.
2 Baðherb.
Verð
96.500.000 kr.
Fermetraverð
983.690 kr./m2
Fasteignamat
52.100.000 kr.
Mynd af Kristján Þórir Hauksson
Kristján Þórir Hauksson
Löggiltur fasteignasali
www.fastlind.isEignalisti
Garður
Bílastæði
Sameig. Inng.
Fasteignanúmer
2529263_58
Landnúmer
231980
Húsgerð
Fjölbýlishús
Byggingarefni
Steypt
Númer hæðar
06
Hæðir í húsi
7
Hæðir í íbúð
1
Númer íbúðar
03
Vatnslagnir
Nýbygging
Raflagnir
Nýbygging
Frárennslislagnir
Nýbygging
Gluggar / Gler
Nýbygging
Þak
Nýbygging
Lóðarréttindi
Leigulóð
Svalir
Já.
Upphitun
Hitaveita.
Inngangur
Sameiginlegur
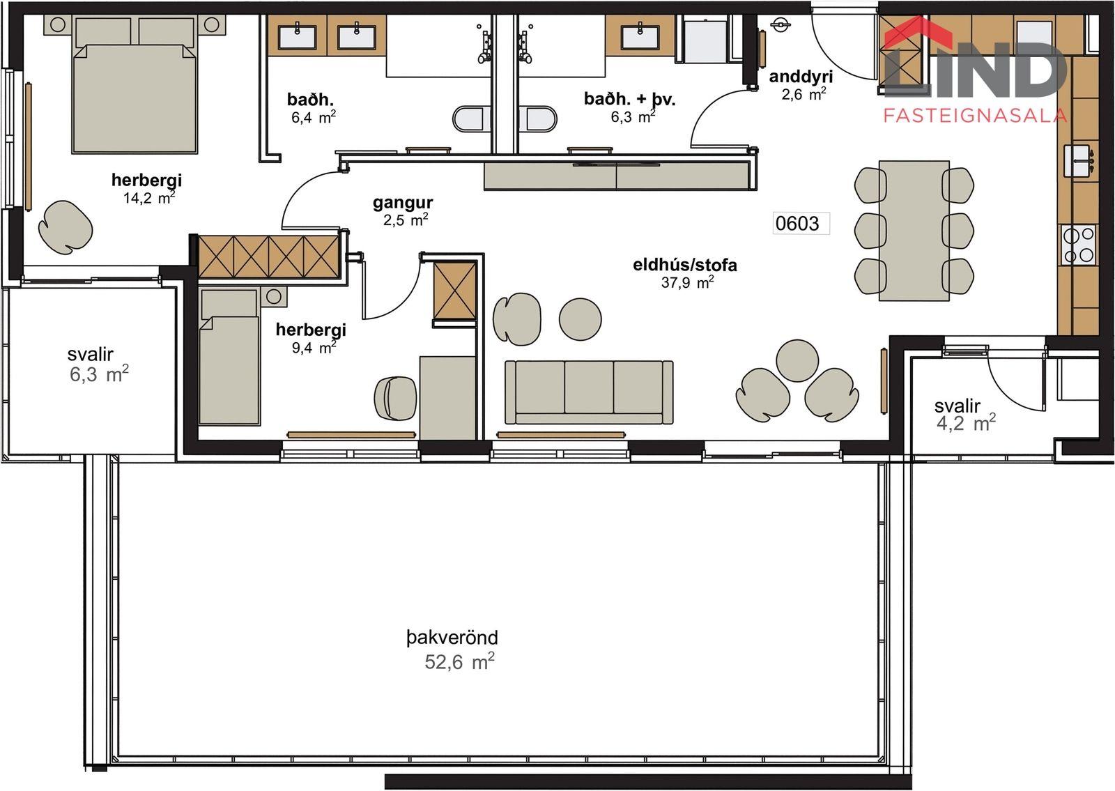
***Íbúð 603 er þriggja herbergja með bílastæði í kjallara. Rúmgóðum þaksvölum & tveimur baðherbergjum.
LIND Fasteignasala kynnir: Nýjar og glæsilegar íbúðir við Hringhamar 17-19 í nýju hverfi í Hamranesi í Hafnarfirði. Íbúðirnar afhendast án gólfefna. Allar íbúðir er búnar með sérstöku loftræstiskerfi. Umframgæði sem 
tryggja mjög góð loftskipti og góða nýtingu á varma. Eldhúsinnrétting er sérsmíðuð af vandaðri gerð frá Axis ásamt vaski og Grohe blöndunartækjum frá Byko. Helluborð og blástursofn eru af gerðinni AEG frá Ormsson (sjá nánar á www.ormsson.is) Gufugleypir í eldhúsi er einnig frá Ormsson. ATH húsið er í Svansvottunarferli.


// VILDARKORT LINDAR //
Við vekjum sérstaka athygli á því að allir kaupendur hjá Lind fasteignasölu fá Vildarkort Lindar sem veitir 30% afslátt hjá samstarfsaðilum okkar, en þeir eru:
Parki (gólfefni), Z brautir og gluggatjöld, Húsgagnahöllin, Betra bak, Dorma, Flügger litir, S. Helgason steinsmiðja, Vídd og Húsasmiðjan.

Íbúð 603: 98.1 fm 3ja herbergja íbúð á 6. hæð. Íbúðin er 98.1 fm þar af 5.4 fm geymsla, bílastæði í kjallara fylgir íbúðinni.
Rúmgóðar 52.6 fm þaksvölum & tveimur baðherbergjum.
Allar nánari upplýsingar á heimasíðu verkefnisins www.hringhamar.is

ALLAR NÁNARI UPPLÝSINGAR VEITA:
KRISTJÁN ÞÓRIR HAUKSSON Í S: 696-1122 / KRISTJAN@FASTLIND.IS
ANDRI FREYR HALLDÓRSSON Í S: 762-6162 / ANDRI@FASTLIND.IS


Gólf íbúða eru fleytt og tilbúin fyrir endanlegt gólfefni, nema í baðherbergi og í þvottahúsi en þar eru flísar á gólfum. Einnig eru flísar á veggjum baðherbergja, flísar eru frá Parka. Fataskápar í herbergjum og forstofu eru af vandaðri gerð frá Axis. Borðplötur eru í eldhúsi, baði og þvottahúsi þar sem við á og eru frá Axis.

Eldhúsinnrétting er sérsmíðuð af vandaðri gerð frá Axis ásamt vaski og Grohe blöndunartækjum frá Byko. Helluborð og blástursofn eru af gerðinni AEG frá Ormsson (sjá nánar á www.ormsson.is) Gufugleypir í eldhúsi er einnig frá Ormsson.

** Baðherbergi: Baðinnrétting kemur frá Axis. Hreinlætistæki og handklæðaofn eru frá Byko. Salernið er upphengt og innbyggt. Hitastýrð blöndunartæki verða við sturtu. Gólf eru flísalögð og veggir að hluta upp í loft

**Baðherbergi 2: Baðinnrétting kemur frá Axis. Hreinlætistæki og handklæðaofn eru frá Byko. Salernið er upphengt og innbyggt. Hitastýrð blöndunartæki verða við sturtu. Gólf eru flísalögð og veggir að hluta upp í loft

Loftræsting: Sérstakt loftræstikerfi er fyrir hverja íbúð. Kerfið hefur loftskipti í íbúðinni með því að taka loft að utan og dæla því inn í vistarverurnar, herbergi og stofu, og soga lofti út úr baði, þvottahúsi og eldhúsi. Kerfið er með varmaendurvinnslu og nýtir við bestu aðstæður um 80% af varmanum. Kerfið er með loftsíum og er allt loft sem kemur inn síað. Ekki á að vera þörf á að opna glugga í íbúðinni til loftunnar.

Frágangur sameignar: Anddyri/stigahús er lokað og er það flísalagt á aðkomuhæð með uppsettum póstkössum. Stigar og stigapallar eru teppalagðir, handrið eru á stigagöngum. Allar útidyrahurðir frágengnar og er rafmagnsopnun á aðalinngöngum. Sameign er upphituð með ofnakerfi. Raflagnir í sameign eru fullbúnar með ljósum, sbr. teikningar. Loftræstilagnir eru lagðar skv. teikningu.

Sameign: Í bílgeymslu er lagt grunnkerfi fyrir bílhleðslu. Eigendur stæða í bílgeymslu 
geta sett upp eigin hleðslustöð og tengt inn á grunnkerfi bílgeymslu

Skólar og leikskólar eru í nágrenni og eru öruggar göngu- og hjólaleiðir að þeim. Einnig er fyrirhugað að nýr leikskóli rísi í næsta nágrenni.
Hverfið er í nálægð við náttúru og er staðsetningin einstök með tilliti til útivistar. Í næsta nágrenni er Ástjörn, Hvaleyrarvatn og ein vinsælasta gönguleiðin í Hafnarfirði, upp á Helgafell.

Eignin afhendist skv meðfylgjandi skilalýsingu. 

ALLAR NÁNARI UPPLÝSINGAR VEITA:
KRISTJÁN ÞÓRIR HAUKSSON Í S: 696-1122 / KRISTJAN@FASTLIND.IS
ANDRI FREYR HALLDÓRSSON Í S: 762-6162 / ANDRI@FASTLIND.IS


Gjöld sem kaupandi þarf að standa straum af vegna kaupanna: 
1. Stimpilgjald af kaupsamningi - 0,8% af heildarfasteignamati, lögaðili greiðir 1,6%  
2. Þinglýsingargjald af kaupsamningi, veðskuldabréfi, mögulegu veðleyfi o.fl. - kr. 2.700 af hverju skjali. 
3. Lántökugjald lánastofnunar. Nánari upplýsingar á t.d. heimasíðu lánastofnana. 
4. Umsýslugjald til fasteignasölu 74.900.- með vsk. 
5. Kaupandi greiðir skipulagsgjald, 0,3% af brunabótamati, þegar það verður lagt á
Engin gögn fundust fyrir þessa eign
Byggt 2024
Fasteignanúmer
2529263
Byggingarefni
Steypt
Númer hæðar
B0
Númer eignar
61
Húsmat
0 kr.
Lóðarmat
0 kr.
Fasteignamat samtals
0 kr.
Brunabótamat
0 kr.

Myndir (39)

Sambærilegar eignir

Skoða eignina Hringhamar 19 (205)
Opið hús:16. maí kl 15:30-16:00
Hringhamar 19 (205)
221 Hafnarfjörður
70.1 m2
Fjölbýlishús
211
863 þ.kr./m2
60.500.000 kr.
Skoða eignina Hringhamar 19 (104)
Opið hús:16. maí kl 15:30-16:00
Hringhamar 19 (104)
221 Hafnarfjörður
61.7 m2
Fjölbýlishús
211
955 þ.kr./m2
58.900.000 kr.
Skoða eignina Hringhamar 19 (701) ÞAKÍBÚÐ
Bílastæði
Opið hús:16. maí kl 15:30-16:00
Hringhamar 19 (701) ÞAKÍbúð
221 Hafnarfjörður
135 m2
Fjölbýlishús
322
962 þ.kr./m2
129.900.000 kr.
Skoða eignina Hringhamar 19 (701) ÞAKÍBÚÐ
Bílastæði
Opið hús:16. maí kl 15:30-16:00
Hringhamar 19 (701) ÞAKÍbúð
221 Hafnarfjörður
135 m2
Fjölbýlishús
322
962 þ.kr./m2
129.900.000 kr.
Fasteignaleitin
Öflugur fasteignaleitarvefur með einföldu og notendavænu viðmóti sem býður upp á ítarlegar upplýsingar um fasteignir, þróun verðlags og fróðleik um fasteignamarkaðinn.
Hafðu samband
© Copyright 2026 - Fasteignaleitin