Fimmtudagur 23. október
Fasteignaleitin
Skráð 22. okt. 2025
Deila eign
Deila

Holtagerði 47

EinbýlishúsHöfuðborgarsvæðið/Kópavogur-200
238.5 m2
7 Herb.
5 Svefnh.
1 Baðherb.
Verð
187.900.000 kr.
Fermetraverð
787.841 kr./m2
Fasteignamat
141.100.000 kr.
Brunabótamat
111.700.000 kr.
HJ
Helgi Jóhannes Jónsson
Fasteignasali
Byggt 1967
Þvottahús
Garður
Bílskúr
Margir Inng.
Fasteignanúmer
2062489
Húsgerð
Einbýlishús
Byggingarefni
Steypt
Númer hæðar
1
Hæðir í húsi
2
Hæðir í íbúð
2
Númer íbúðar
1
Frárennslislagnir
Endurnýjaðar
Gluggar / Gler
Tvöfalt gler
Þak
Endurnýjað
Lóðarréttindi
Leigulóð
Svalir
Verönd
Upphitun
Hitaveita
Inngangur
Margir inngangar
Matsstig
7 - Fullgerð bygging
Fasteignasalan TORG kynnir : 
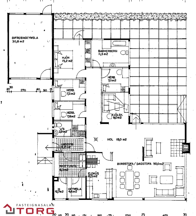
Stórglæsilegt 187,5fm 6 herbergja einbýlishús á einni hæð ásamt 32,6fm bílskúr, samtals : 220,1fm. Frá holi er gengið upp í efri stofu ca.18fm (óskráð hjá FMR) með gluggum á fjóra vegu, mjög fallegt útsýni. Húsið hefur fengið mjög gott viðhald og lítur mjög vel út að utan sem innan. Eignin skiptist í forstofu, hol, eldhús, stofu, borðstofu, efri stofa, baðherbergi, gestasnyrting, 4-5 svefnherbergi, þvottahús, 2 geymslur, bílskúr. Fallegt útsýni er frá stofu. Nánar upplýsingar veitir Helgi Jónsson Löggiltur fasteignasali í síma : 780-2700 eða á helgi@fstorg.is

NÁNARI LÝSING : 

Komið er inn í forstofu með skápum, flísar á gólfi. Gestasnyrting með flísum á gólfi og veggjum. Hol með flísum á gólfi. Mjög rúmgóð stofa og borðstofa með gluggum á þrjá vegu, innfelld lýsing í loftum, fallegur arinn, parket á gólfi. Eldhús með fallegri viðar/hvít innréttingu, tengi fyrir uppþvottavél, granít borðplötur, flísar á milli skápa, góður borðkrókur, parket á gólfi. Gangur með parketi á gólfi. Hjónaherbergi með skápum parket á gólfi, útgengt út í garð. Fjögur svefnherbergi með parketi á gólfi. Eitt herbergjana er nýtt sem sjónvarpsherbergi og er ekki hurð á því en lítið mál að breyta því. Mjög rúmgott baðherbergi með walk in sturtu, innréttingu við vask, handklæðaofn, flísar á gólfi og veggjum. Innaf eldhúsi er gott þvottahús með innréttingum, flísar á gólfi og veggjum. Tvær geymslur eru innaf þvottahúsi. Bílskúrinn er með rafmagni, hita og vatni. Mjög fallegur garður er umhverfis húsið með trjágróðri. Stór verönd er út frá stofu. Hellulagt bílaplan er við húsið. 
Húsið lítur mjög vel út að utan og hefur fengið gott viðhald. 
Endurnýjað : Nýlega var skipt um frárennslislangir undir húsinu ásamt því að nýjar heita- og kaldavatnslagnir voru lagðar inn í húsið. Bæði baðherbergin tekinn í geng 2024. Árið 1997 var skipt um þak á húsinu og stofa efri hæðar bætt við húsið.

Nánar upplýsingar veitir Helgi Jónsson Löggiltur fasteignasali í síma : 780-2700 eða á helgi@fstorg.is
 
Engin gögn fundust fyrir þessa eign
Byggt 1967
32.6 m2
Fasteignanúmer
2062489
Byggingarefni
Steypt
Númer hæðar
01
Númer eignar
01
Húsmat
0 kr.
Lóðarmat
0 kr.
Fasteignamat samtals
0 kr.
Brunabótamat
12.550.000 kr.
Matsstig
7 - Fullgerð bygging

Sambærilegar eignir

Skoða eignina Huldubraut 34
Skoða eignina Huldubraut 34
Huldubraut 34
200 Kópavogur
232.2 m2
Parhús
724
840 þ.kr./m2
195.000.000 kr.
Skoða eignina Álfabrekka 11
Skoða eignina Álfabrekka 11
Álfabrekka 11
200 Kópavogur
264.5 m2
Einbýlishús
825
718 þ.kr./m2
189.800.000 kr.
Skoða eignina Fagrihjalli 3
Bílskúr
Skoða eignina Fagrihjalli 3
Fagrihjalli 3
200 Kópavogur
233.2 m2
Fjölbýlishús
634
793 þ.kr./m2
184.900.000 kr.
Skoða eignina Furuhjalli 16
3D Sýn
Bílskúr
Skoða eignina Furuhjalli 16
Furuhjalli 16
200 Kópavogur
245.6 m2
Einbýlishús
846
812 þ.kr./m2
199.500.000 kr.
Fasteignaleitin
Öflugur fasteignaleitarvefur með einföldu og notendavænu viðmóti sem býður upp á ítarlegar upplýsingar um fasteignir, þróun verðlags og fróðleik um fasteignamarkaðinn.
Hafðu samband
© Copyright 2025 - Fasteignaleitin