Fimmtudagur 16. október
Fasteignaleitin
Skráð 14. okt. 2025
Deila eign
Deila

Hólagata 4

EinbýlishúsSuðurnes/Vogar-190
177.5 m2
6 Herb.
5 Svefnh.
2 Baðherb.
Verð
104.900.000 kr.
Fermetraverð
590.986 kr./m2
Fasteignamat
68.000.000 kr.
Brunabótamat
91.600.000 kr.
Mynd af Pétur Ásgeirsson
Pétur Ásgeirsson
Löggiltur fasteignasali
Byggt 1969
Þvottahús
Garður
Bílskúr
Sérinng.
Fasteignanúmer
2096474
Húsgerð
Einbýlishús
Byggingarefni
Steypt
Númer hæðar
1
Hæðir í húsi
2
Hæðir í íbúð
2
Númer íbúðar
1
Vatnslagnir
Nýtt
Raflagnir
Nýtt
Frárennslislagnir
Nýtt
Gluggar / Gler
Nýtt
Þak
Nýtt
Lóðarréttindi
Leigulóð
Svalir
ja
Upphitun
Hiti í gólfum
Inngangur
Sérinngangur
Matsstig
7 - Fullgerð bygging
!!AUKA ÍBÚÐ!!
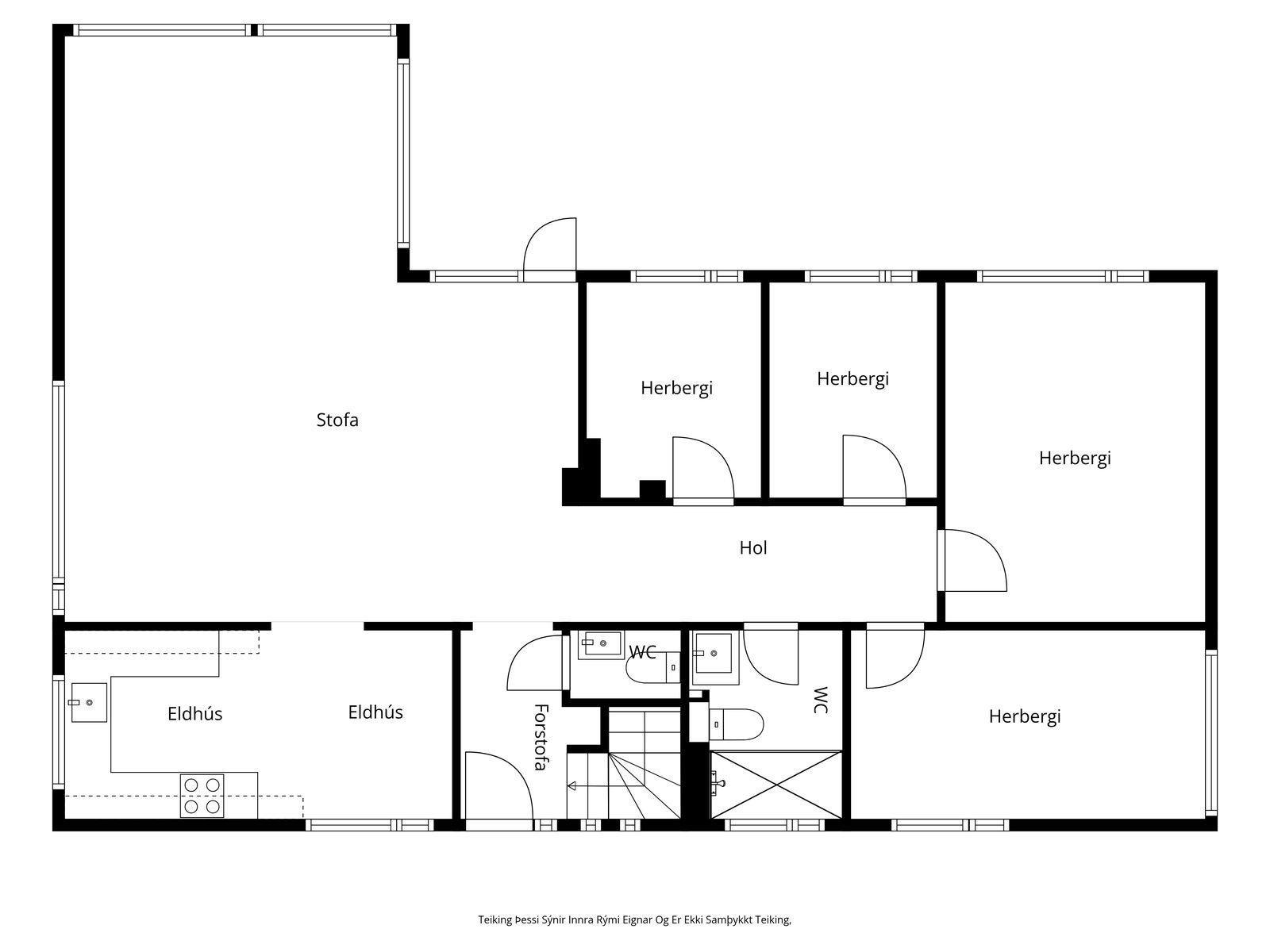
Pétur Ásgeirsson og Ástþór Reynir löggiltir fasteignasalar hjá RE/MAX fasteignasölu kynna í einkasölu: Mikið endurnýjað og vel skipulagt 5 herbergja einbýlishús í Vogunum, alls 177,5 fm þar af 30 fm bílskúr sem er innréttaður sem íbúð. 
Á efri hæð eru fjögur svefnherbergi, eldhús stofa, baðherbergi og gestasalerni. Á neðri hæð er bílskúr sem er búið að innrétta sem íbúð, baðherbergi og þvottahús sem er með sturtuaðstöðu.

// 4 Svefnherbergi
// Þrjú baðherbergi.
// Húsið mikið endurnýjað að innan og utan.
// Mjög góð staðsetning í Vogum
// Leigueining.
// Mjög stór lóð.

Skv. eiganda er búið að endurnýja:
Baðhergi uppi endurnýjað.
Skipt um alla glugga.
Endurnýja frárennslulagnir.
Endurnýja neysluvatnslagnir.
Múr lagaður og húsið málað.
Nýtt þak, settur tvöfaldur þakpappi, lektur og nýtt þakjárn.
Nýjar flasningar og og rennur.
Gólfhiti á alla eftir hæðinni.
Skipt um allar hurðar á efri hæðinni.
Eldhúsinnrétting er ný með steinplötu og marmara flísum milli skápa. Ný eldhústæki.
Ný Flísalögn í eldhúsinu,forstofu og litla klósettinu. Nýjar klósett skálar og handlaugar ásamt innréttingum
Nýtt parket 
Nýtt teppi á stigan á milli hæða.
Ný Loftaklæðning.
Rafmagn endurnýjað og sett ný ljós og tenglar.
Allir veggir sparslaðir og málaðir.

Lýsing eignar:
Efri hæð.
Forstofa: Með flísum á gólfi.
Gestasalerni: Flísar á gólfi og hluta af veggjum og innréttingu.
Stofa: Er opin og björt, parket á gólfi og með útgengi út á stórar svalir og garð sem eru í suður með glæsilegu útsýni.
Eldhús: Ný innrétting, mjög rúmgóð og falleg  með miklu borðplássi. Steinn á borði og með nýjum tækjum og með marmarflísum á milli skápa.
Baðherbergi: Flísalagt í hólf og gólf. Walk in sturta, með fallegri innréttingu og upphengdu salerni.
Svefnherbergin: Eru 4 og eru þau öll rúmgóð og með parket á gólfi.

Neðri hæð.
Forstofa: Flísar á gólfi.
30 fm bílskúr: Sem er búið að innrétta sem litla íbúð. Parket og flísar á gólfi.  Búið að útbúa lítið eldhús með ágætis skápaplássi.
Baðherbergi: Flísalagt í hólf og gólf. Walk in sturta, með fallegri innréttingu og upphengdu salerni.
Þvottahús: Flísar á gólfi og hluta af veggjum. Mjög rúmgott og búið að útbúa auka sturtu.

Frábær staðsetning í Vogunum. Örstutt í alla helstu þjónustu, leikskóla, skóla, og fl. 

Nánari upplýsingar gefur Pétur Ásgeirsson  löggiltur fasteignasali í síma 893-6513 / petur@remax.is eða Ástþór Reyni í síma 899-6753 eða með tölvupósti á netfangið arg@remax.is

Gjöld sem kaupandi þarf að standa straum af vegna kaupanna: 
1. Stimpilgjald af kaupsamningi - 0,8%(einstaklingar) 1.6% (lögaðilar) af heildarfasteignamati. 
2. Þinglýsingargjald af kaupsamningi, veðskuldabréfi, mögulegu veðleyfi o.fl. - kr. 2.700 af hverju skjali.
3. Lántökugjald lánastofnunar - almennt 45-75 þús.kr. Nánari upplýsingar á heimasíðu lánastofnana. 
4. Umsýslugjald til fasteignasölu kr. 69.900 mvsk.
DagsetningFasteignamatKaupverðStærðFermetraverðNothæfur samningur
29/01/202042.850.000 kr.34.000.000 kr.177.5 m2191.549 kr.Nei
30/01/201723.050.000 kr.34.000.000 kr.177.5 m2191.549 kr.
23/07/200723.060.000 kr.26.800.000 kr.177.5 m2150.985 kr.
Byggt á upplýsingum úr Þjóðskrá Íslands frá 2006-2025
Byggt 1969
30 m2
Fasteignanúmer
2096474
Byggingarefni
Steypt
Númer hæðar
00
Númer eignar
02
Húsmat
0 kr.
Lóðarmat
0 kr.
Fasteignamat samtals
0 kr.
Brunabótamat
15.350.000 kr.
Matsstig
7 - Fullgerð bygging

Sambærilegar eignir

Skoða eignina Sjávarborg 1 A
Skoða eignina Sjávarborg 1 A
Sjávarborg 1 A
190 Vogar
130.4 m2
Raðhús
413
764 þ.kr./m2
99.600.000 kr.
Skoða eignina Sjávarborg 1 B
Skoða eignina Sjávarborg 1 B
Sjávarborg 1 B
190 Vogar
130.4 m2
Raðhús
413
728 þ.kr./m2
94.900.000 kr.
Skoða eignina Sjávarborg 1 C
Skoða eignina Sjávarborg 1 C
Sjávarborg 1 C
190 Vogar
130.4 m2
Raðhús
413
764 þ.kr./m2
99.600.000 kr.
Skoða eignina Sjávarborg 5 B
Skoða eignina Sjávarborg 5 B
Sjávarborg 5 B
190 Vogar
130.4 m2
Raðhús
514
728 þ.kr./m2
94.900.000 kr.
Fasteignaleitin
Öflugur fasteignaleitarvefur með einföldu og notendavænu viðmóti sem býður upp á ítarlegar upplýsingar um fasteignir, þróun verðlags og fróðleik um fasteignamarkaðinn.
Hafðu samband
© Copyright 2025 - Fasteignaleitin