Föstudagur 24. október
Fasteignaleitin
Skráð 18. sept. 2025
Deila eign
Deila

Fróðaþing 40

EinbýlishúsHöfuðborgarsvæðið/Kópavogur-203
285.7 m2
8 Herb.
5 Svefnh.
3 Baðherb.
Verð
220.000.000 kr.
Fermetraverð
770.039 kr./m2
Fasteignamat
151.250.000 kr.
Brunabótamat
137.050.000 kr.
ÞG
Þórunn Gísladóttir
Löggiltur fasteignasali
Byggt 2009
Þvottahús
Garður
Bílskúr
Sérinng.
Fasteignanúmer
2306237
Húsgerð
Einbýlishús
Byggingarefni
Forsteypt
Númer hæðar
1
Númer íbúðar
1
Vatnslagnir
Sagt í lagi
Raflagnir
Sagt í lagi
Frárennslislagnir
Sagt í lagi
Gluggar / Gler
Tvöfalt gler
Þak
Sagti í lagi
Lóðarréttindi
Leigulóð
Svalir
Verönd
Upphitun
Hitaveita
Inngangur
Sérinngangur
Matsstig
8 - Í notkun
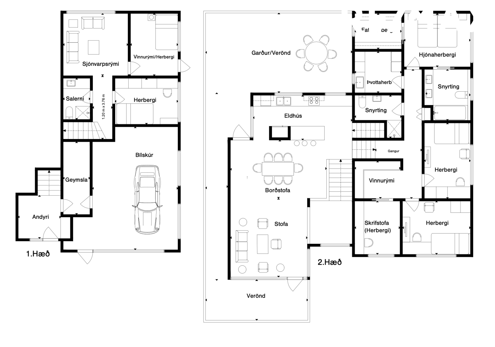
RE/MAX fasteignasala, Þórunn Gísladóttir og Garðar Hólm löggiltir fasteignasalar kynna glæsilegt einbýlishús með aukaíbúð á einstökum útsýnisstað í Kópavogi. Afstaða hússins er góð, innra skipulag frábært, gott flæði og hönnun falleg í alla staði. Húsið er staðsett við Fróðaþing 40, Elliðavatn og Heiðmörk í næsta nágrenni. Útsýni yfir Elliðavatn, Heiðmörk og Bláfjöll. Um er að ræða fallega hannað hús teiknað af Kára Eiríkssyni arkitekt. Húsið er á pöllum og sérstaklega hannað inn í landslagið, þar sem garðurinn verður hluti af rýminu. Við hönnun hússins var sérstaklega haft í huga að náttúruleg birta flæði um öll rými. Aukin lofthæð og gólfsíðir gluggar. 

Húsið stendur á hornlóð í innri botnlanga. Gluggar eru frá Ideal Combi, trégluggar með álprófíl. Utanhússklæðning í kringum eldhús er jatoba harðviður. Eldhúsinnrétting er frá Alno og teiknuð af Guðrúnu Benediktsdóttur innanhúsarkitekt, helluborð, háfur og blöndunartæki frá Eirvík. Blöndunartæki á baðherbergjum frá Tengi. Innihurðar eru frá GKS, sérsmíðaðar í yfirstærð, gegnheilar úr hvíttuðum aski og með felliþröskuldum. Viðarparkett á gólfum, hvíttaður askur og hiti í öllum gólfum. Flísar í anddyri, baðherbergjum og þvottahúsi. Vandaðar gardínur í gluggum. Lýsing hönnuð af lýsingahönnuði, dimmer á öllum ljósum. Sérinngangur er í aukaíbúð, við hönnun hússins var haft í huga að auðvelt væri að opna og loka á milli húss og aukaíbúðar.  Í dag er opið á milli og aukaíbúðin hluti aðalrýmis hússins.

Samkvæmt Húsnæðis- og  mannvirkjastofnun er húsið 285,7 fm, þar af bílskúr 44,5 fm. 
 
Nánari lýsing:

Forstofan er flísalögð. Mikil lofthæð.
Geymsla er við forstofu og eru flísar á gólfi. 
Bílskúrinn er 44,5 fm og er innangengt úr forstofu í hann. Góðir gluggar eru í bílskúrnum. Rafmagnsopnari á bílskúrshurðinni. Einnig útgengt um gönguhurð beint út. 
Gengið upp breiðan stiga á aðalhæð þar sem er stofa og eldhús, parket á gólfum.
Í eldhúsi eru vandaðar þýskar innréttingar frá Alno og tæki frá Gorenje og Eirvík, útgengi er úr eldhúsi í garð.
Stofurýmið er einstaklega fallegt og opið rými með útsýni í algjörum sérflokki. Stór rennihurð úr stofu og út í garð.
Gengið upp þrep í svefnálmu, þar eru 4 herbergi auk miðrýmis sem í dag er nýtt undir bókahillur og setuaðstöðu. Gegnheil rennihurð skilur í dag milli miðrýmis og herbergis, sem í dag er nýtt undir skrifstofu. 
Tvö rúmgóð og björt svefnherbergi.
Hjónasvítan er með fataherbergi og sérbaðherbergi með baðkari og flísalagðri sturtu. 
Á gangi í svefnálmu er baðherbergi með flísalagðri sturtu. 
Öll herbergin eru með parketi á gólfum. Flísar á baðherbergjum og þvottahúsi, gluggar á öllum rýmum og gólfhiti í öllum rýmum nema í bílskúr en þar eru ofnar.

Aukaíbúð er tveggja herbergja með parketi á gólfum, hvít eldhúsinnrétting, baðherbergi flísalagt í hólf og gólf og flísalögð sturta. Sömu sérsmíðuðu hurðar og í aðalrými. Innréttingar og gólfefni er samræmt á milli aukaíbúðar og aðalrýmis og því fallegur heildarsvipur á eigninni allri.

Garðurinn er fallegur og vel gróinn með stórum reynitrjám. Hellulögn í kringum húsið. Stórt hellulagt bílaplan og snjóbræðsla undir allri hellulögn fyrir framan hús. Garðurinn hefur nýlega verið endurhannaður af landslagsarkitekt og liggja fyrir teikningar sem fylgja eigninni.

Þetta er frábært fjölskylduhús með útleigumöguleika.

Allar upplýsingar um eignina veita Þórunn Gísladóttir og Garðar Hólm löggiltir fasteignasalar í síma 695 0448 og 899 8811 eða thorunn@remax.is gardar@remax.is 


1. Stimpilgjald af kaupsamningi - 0.8% af heildarfasteignamati / 1.6% fyrir lögaðila. (0.4% við fyrstu kaup einstaklinga).
2. Þinglýsingagjald af kaupsamningi, veðskuldabréfi, veðleyfi o.fl.- kr. 2.700 af hverju skjali.
3. Lántökugjald lánastofnunar - skv. gjaldskrá lánastofnunar
4. Umsýsluþóknun til fasteignasölu, sbr.kauptilboð.
 
 
 
Engin gögn fundust fyrir þessa eign
Byggt 2009
44.5 m2
Fasteignanúmer
2306237
Byggingarefni
Forsteypt
Númer hæðar
01
Númer eignar
02
Húsmat
0 kr.
Lóðarmat
0 kr.
Fasteignamat samtals
0 kr.
Brunabótamat
15.350.000 kr.
Matsstig
8 - Í notkun

Sambærilegar eignir

Skoða eignina Kleifakór 1, tvær íbúðir
Bílskúr
Tvær stórar íbúðir.
Kleifakór 1, tvær íbúðir
203 Kópavogur
272.6 m2
Parhús
725
761 þ.kr./m2
207.500.000 kr.
Skoða eignina Fróðaþing 1
Bílskúr
Skoða eignina Fróðaþing 1
Fróðaþing 1
203 Kópavogur
281.7 m2
Einbýlishús
634
744 þ.kr./m2
209.500.000 kr.
Skoða eignina Fagraþing 10
Bílskúr
Skoða eignina Fagraþing 10
Fagraþing 10
203 Kópavogur
250 m2
Parhús
424
877 þ.kr./m2
219.300.000 kr.
Skoða eignina Vatnsendablettur 711
3D Sýn
Bílskúr
Vatnsendablettur 711
203 Kópavogur
295.4 m2
Einbýlishús
524
775 þ.kr./m2
228.800.000 kr.
Fasteignaleitin
Öflugur fasteignaleitarvefur með einföldu og notendavænu viðmóti sem býður upp á ítarlegar upplýsingar um fasteignir, þróun verðlags og fróðleik um fasteignamarkaðinn.
Hafðu samband
© Copyright 2025 - Fasteignaleitin