Fimmtudagur 9. október
Fasteignaleitin
Opið hús:12. okt. kl 12:30-13:30
Skráð 7. okt. 2025
Deila eign
Deila

Axlarás 58

Nýbygging • RaðhúsHöfuðborgarsvæðið/Hafnarfjörður-221
222.7 m2
5 Herb.
4 Svefnh.
1 Baðherb.
Verð
149.300.000 kr.
Fermetraverð
670.409 kr./m2
Fasteignamat
89.600.000 kr.
Brunabótamat
0 kr.
Mynd af Auður Magnúsdóttir
Auður Magnúsdóttir
Löggiltur fasteignasali
Þvottahús
Garður
Sérinng.
Fasteignanúmer
2523338
Húsgerð
Raðhús
Byggingarefni
Steypt
Númer hæðar
1
Hæðir í húsi
2
Hæðir í íbúð
2
Númer íbúðar
1
Vatnslagnir
Nýtt
Raflagnir
Nýtt
Frárennslislagnir
Nýtt
Gluggar / Gler
Nýtt
Þak
Nýtt
Lóðarréttindi
Leigulóð
Svalir
Sólpallur
Upphitun
Gólfhiti
Inngangur
Sérinngangur
Matsstig
4 - Fokheld bygging
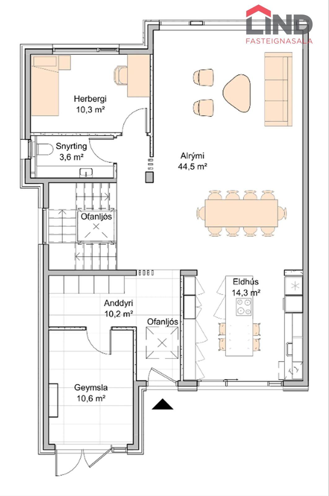
Auður Magnúsdóttir löggiltur fasteignasali og Lind fasteignasala kynna nýtt og vandað endaraðhús á tveimur hæðum með inngangi að ofanverðu við Axlarás 58 í Áslandi Hafnarfirði. Eignin er skráð 222,7 fm og skiptist í forstofu, eldhús, stofu, fjögur svefnherbergi, tvö baðherbergi, þvottahús, sjónvarpsherbergi og tvær geymslur. 

Heimasíða verkefnisins má finna hér

Byggingaraðili: Þarfaþing hf.
Aðalhönnuður: Arkís arkitektar ehf.

Eigninni verður skilað á byggingarstigi 3/4 rúmlega tilbúið til innréttinga. Sjá skilalýsingu hér.
*Gólf eru tilbúin undir gólfefni.
*Allir veggir og loft innan íbúða eru sandsparslaðir og málaðir en lokaumferð skilin eftir.
*Innveggir aðrir en steyptir eru  hlaðnir úr Ytong hleðslusteini, sparslaðir og málaðir í ljósum lit án lokaumferðar.
*Loft í alrými eru tilbúin undir loftadúk.
*Gólfhiti hefur verið lagður og lagnakistur klárar án stjórnstöðvar.
*Búið er að leggja í steypu allar lagnir fyrir vélræna loftræsingu í hvert herbergi og gert ráð fyrir loftræsikerfi með varmahjóli til orkusparnaðar.
*Þvottahús skilast spörtluð og máluð án lokaumferðar, gólf tilbúin undir flísalögn.
*Baðherbergi skilast með spörtluðum loftum og hluta veggja aðrir veggir og gólf eru tilbúin undir vatnsvörn og flísalögn, að undanskyldum sturtubotni.

Lóð: lóðin verður fullfrágengin með burstuðu Lunawood sólpöllum og girðingum. Aðgengi verður hellulagt með snjóbræðslu samkvæmt lagnateikningum. Gróðurbeð verða grófjöfnuð en gróður fylgir ekki. Ídráttur fyrir rafbílahleðslu verður lagður.

Nánari lýsing:
2.hæð

Forstofa: Rúmgóð forstofa. Þakgluggi sem veitir birtu inní rýmið. Úr anddyri er gengið inní geymslu.
Geymsla: Innaf forstofu, tvöföld útihurð. 10,6 fm
Borðstofa/stofa: Rúmgott og bjart alrými. Stór stofugluggi og hátt til lofts.
Eldhús: opið við borðstofu/stofu. útgengi út á sólpall.
Snyrting
Herbergi: 10,3 fm

1.hæð
Sjónvarpshol: 11,4 fm, Inna sjónvarpsholi er geymsla/lagnarými.
Geymsla: 5,6 fm.
Baðherbergi
Þvottahús: sér þvottahús. Möguleiki er að setja upp sturtu í þvottahúsi.
Herbergi: 12,0 fm, fataherbergi 6,0 fm. Útgengi út á sólpall.
Herbergi: . 8,7 fm. Útgengi út á sólpall.
Herbergi: 13,3 fm.

Nánari upplýsingar veitir Auður Magnúsdóttir, Löggiltur fasteignasali í síma 8482666 eða í tölvupósti audur@fastlind.is

-----------------------------------------------------------------------
Gjöld sem kaupandi þarf að standa straum af vegna kaupanna: 
1. Stimpilgjald af kaupsamningi - 0.8% af heildarfasteignamati / 1.6% fyrir lögaðila 
    Fyrstu kaup - 0,4% af heildarfasteignamati
2. Þinglýsingagjald af kaupsamningi, veðskuldabréfi, veðleyfi o.fl.- kr. 2.700 af hverju skjali.
3. Lántökugjald lánastofnunar
4. Umsýsluþóknun til fasteignasölu, sbr.kauptilboð.
Engin gögn fundust fyrir þessa eign

Sambærilegar eignir

Skoða eignina Reyniberg 7
3D Sýn
Opið hús:09. okt. kl 16:45-17:15
Skoða eignina Reyniberg 7
Reyniberg 7
221 Hafnarfjörður
219.5 m2
Einbýlishús
514
661 þ.kr./m2
145.000.000 kr.
Skoða eignina Axlarás 54A
Opið hús:12. okt. kl 12:30-13:30
Skoða eignina Axlarás 54A
Axlarás 54A
221 Hafnarfjörður
213.8 m2
Raðhús
514
767 þ.kr./m2
163.900.000 kr.
Skoða eignina Axlarás 54B
Opið hús:12. okt. kl 12:30-13:30
Skoða eignina Axlarás 54B
Axlarás 54B
221 Hafnarfjörður
213.8 m2
Raðhús
514
683 þ.kr./m2
146.000.000 kr.
Skoða eignina Furuvellir 13
Bílskúr
Opið hús:12. okt. kl 17:00-17:30
Skoða eignina Furuvellir 13
Furuvellir 13
221 Hafnarfjörður
226.6 m2
Einbýlishús
513
692 þ.kr./m2
156.900.000 kr.
Fasteignaleitin
Öflugur fasteignaleitarvefur með einföldu og notendavænu viðmóti sem býður upp á ítarlegar upplýsingar um fasteignir, þróun verðlags og fróðleik um fasteignamarkaðinn.
Hafðu samband
© Copyright 2025 - Fasteignaleitin